Au cœur de Châtel-Guyon, cet immeuble, témoin de la splendeur de la période thermale, fait l’objet d’une rénovation pensée pour préserver son caractère tout en améliorant son confort et ses performances énergétiques.
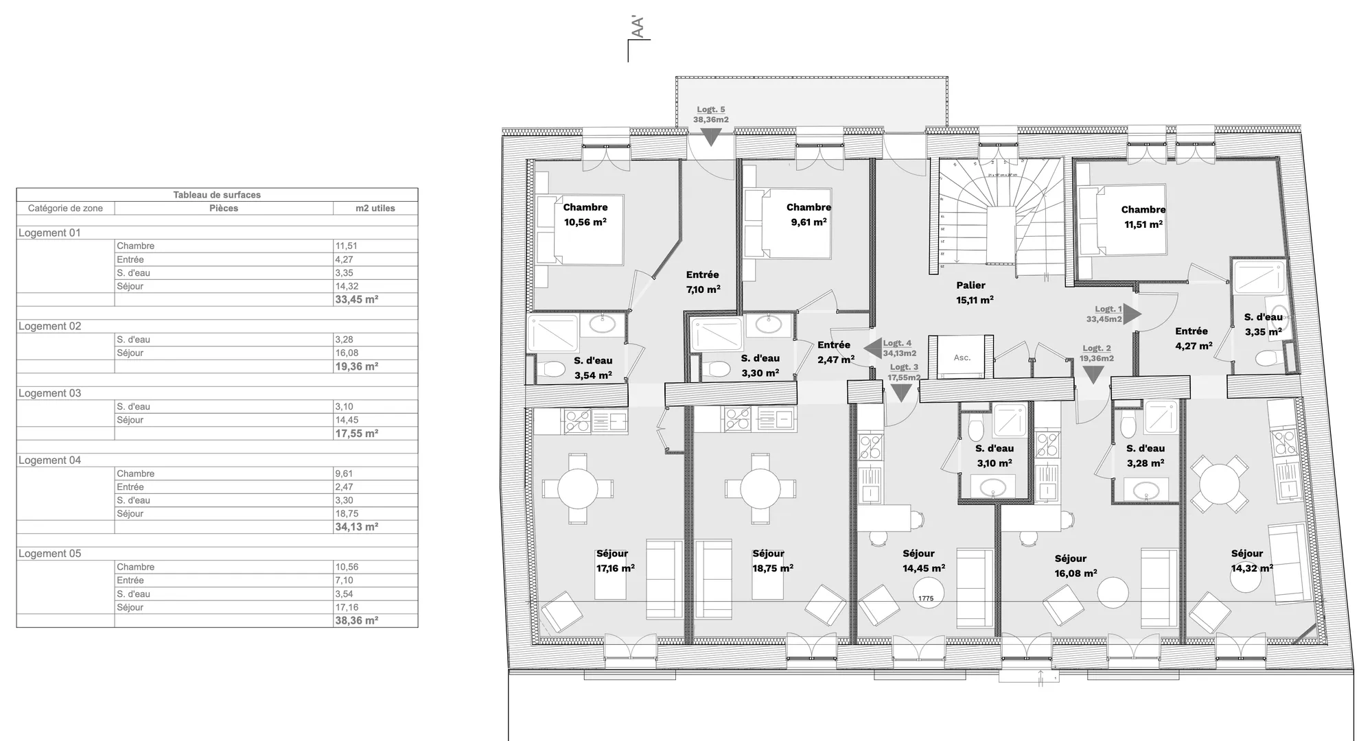
L’intervention vise à mettre en valeur les qualités architecturales d’origine tout en répondant aux exigences actuelles en matière d’isolation et de confort. Les appartements sont conçus traversants nord-sud, afin d’optimiser l’apport en lumière naturelle et de bénéficier de l’effet traversant pour une ventilation efficace.
Le projet privilégie des matériaux respectueux de l’environnement, sélectionnés pour leur durabilité et leur capacité à améliorer le confort thermique et acoustique des logements. Cette approche assure une rénovation harmonieuse, en cohérence avec l’histoire du bâtiment et les attentes contemporaines en matière d’habitat.
Ce projet illustre notre engagement à valoriser le patrimoine tout en proposant des espaces de vie sains, lumineux et adaptés aux modes de vie d’aujourd’hui.
Linkedin
Instagram
Facebook